1022 -8×25 VIVIENDA MULTIFAMILIAR 4 PISOS
S/ 120.00
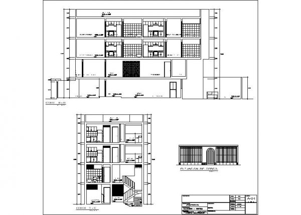
EDIFICACION DE 4 NIVELES
El 1° NIVEL contiene: 2 garajes, sala, comedor, patio, cocina, deposito; el 2°, 3° y 4°NIVEL contiene: 1 departamento con 3 habitaciones.
TODAS LAS ESPECIALIDADES
1. Arquitectura.
2. Estructuras.
3. Instalaciones Sanitarias.
4. instalaciones Eléctricas.
Todos los planos de construcción.
Formato : Autocad (Para imprimir).
Ver imagen de distribución.
Si eres de Perú:
¿Cómo comprar?
Pagar con tarjeta o Efectivo en PERÚ
Pagar con tarjeta SIN CUENTA Paypal / INTERNACIONAL
¿NO ENCUENTRAS UN PLANO A TU MEDIDA?
Nos encargaremos de brindarte una solución profesional para la construcción de tu vivienda, déjanos tus datos y te llamaremos!





